Einrichtungsvarianten – Bodensystem
- AccoComfort - Dreiecksäule mit beweglichen Tischen, 4 Systeme
- AccoComfort - Dreiecksäule mit beweglichen Tischen, 5 Systeme
- AccoComfort - Dreiecksäule mit beweglichen Tischen, 8 Systeme
- Energiezelle - Medienzelle mit beweglichen Tischen, 4 Systeme
- Energiezelle - Medienzelle mit beweglichen Tischen, 8 Systeme
- Schülertisch mit Frontinstallation, 8 Systeme
- Schülertisch mit Frontinstallation und Anbaubecken, 8 Systeme
- Schülertisch mit Frontinstallation und Einbaubecken, 8 Systeme
- Schüler-Wandexperimentierplätze mit Medienversorgung und beweglichen Tischen
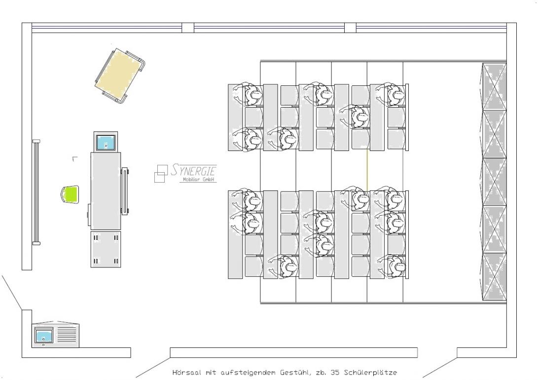
- Hörsaal mit aufsteigendem Gestühl
Ausstattung:
1 x Pylonentafel 2000 mm
1 x Lehrertisch 1950 x 750 mm, mit Anbaubecken
1 x Fahrbarer Ansatztisch, 900 x 750 mm
1 x Schutzscheibe
1 x Abzug freistehend 1200 mm
1 x Spüle 1200 x 600 mm
5 x Sammlungsschrank 1200 x 600 mm
1 x Hörsaalgestühl für 35 Schüler